ATTENTION: Citizen Access will be unavailable Thursday, October 9 at 5:00 PM to Monday, October 13 at 6:00 AM for scheduled maintenance and updates. We apologize for the inconvenience.

Ventura Ranch Farmworker Housing Project

The County has received an application for Ventura Ranch, a 100 percent affordable, for-rent farmworker housing complex.

Project Information

Case Number: PL23-0051
Applicant: Ventura Ranch Partners, LLC

Contact Information

For general questions about the project, please contact: VenturaRanchHousing@VenturaCounty.gov  
To sign up for project updates, please fill out the form below.

Project Description

The County received applications on May 12, 2023, for a Planned Development Permit, a Tentative Parcel Map, and a Discretionary Tree Permit for a farmworker housing complex called Ventura Ranch. The application was deemed complete on April 24, 2024. 

The Planned Development Permit would authorize the construction of a 328-unit farmworker housing complex on approximately 19.6-acres of the overall 82.9-acre project site. The proposed farmworker housing complex would be 100 percent affordable to those farmworkers and their families who qualify as lower income, which is classified as individuals and families who make 80 percent or below of the area median income. The community would be designed in a Spanish Colonial style with 18 three story residential buildings, one three-story residential building with a ground floor community center, and one single story community center. The project would include one-, two-, and three-bedroom apartments.

The proposed project also includes a community garden, a central basketball court with an outdoor recreation area, two playgrounds, outdoor picnic and barbecue areas, a corn hole court, and a bocce ball court. Access to the community would be provided with two driveways on Ventura Avenue. A third connection to Floral Drive in the northeast corner will be for emergencies only, with a locked emergency access gate meeting the County Fire Department standards. This connection would also provide the adjacent Valley Vista neighborhood with a secondary means of egress during emergency conditions. 

The farmhouse, garage, and barn at the southwest corner of the property will be removed to accommodate the secondary driveway access to the project, and the 63-acre conservation parcel, would be accessed using an easement across the project site to Ventura Avenue.

The proposed Tentative Parcel Map would create four parcels:

  • Three parcels comprising the farmworker housing complex, encompassing approximately 19.6 total acres; and
  • A 63.3-acre conservation parcel to remain permanently as open space.

Location

The approximately 82.9-acre project site is located at 4884 North Ventura Avenue in the unincorporated part of Ventura County, north of the City of Ventura on Assessor Parcel Numbers (APNs) 063-0-110-090; 063-0-110-145; 063-0-110-035, and 063-0-110-065.  The site lies at the southeast corner of Norway Drive and North Ventura Avenue, approximately 1.5 miles north of the City of Ventura. 

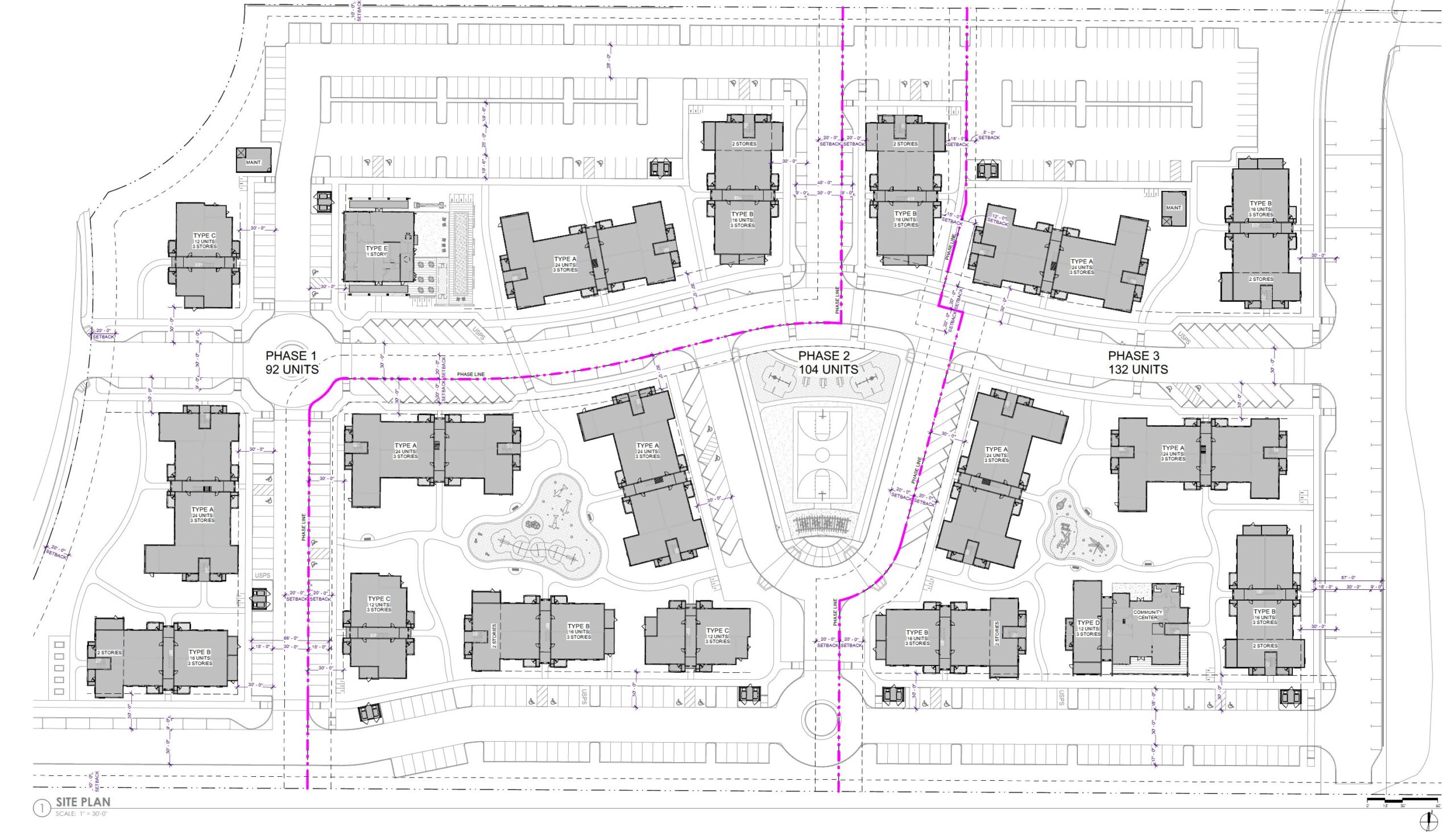
Site Plan

Bird's eye view of Ventura Ranch Farmworker Housing Project site plan, featuring residential buildings, community centers, and playgrounds situated along Norway Drive and Floral Drive.
Site plan for Ventura Ranch Farmworker Housing Project showing phasing details with Phase 1 having 92 units, Phase 2 having 104 units, and Phase 3 having 132 units. Includes building types and layout.

Status

On February 19, 2026, the Ventura County Planning Commission approved the proposed project on a 3-2 vote.  Two appeals were filed during the appeal period, which closed on March 2, 2026. A Board of Supervisors hearing on the appeals is tentatively scheduled for May 19, 2026.

Environmental Review

All discretionary permit applications must be considered under the California Environmental Quality Act (CEQA) to determine their potential to result in significant environmental impacts.  CEQA is found in Section 21000 et seq. of the California Public Resources Code.  The CEQA Guidelines, which are regulations implementing CEQA, are found in Title 14, Section 15000 et seq. of the California Code of Regulations. 

Most projects will require the preparation of an Initial Study.  However, some projects are exempt from this requirement.  The Initial Study will determine what type of environmental document is prepared:

  • A Negative Declaration (ND) – i.e., a determination that the project will not result in significant impacts.
  • A Mitigated Negative Declaration (MND) – i.e., a determination that the project would result in significant impacts, but that mitigation measures could be incorporated into the project which will make those impacts less than significant.
  • An Environmental Impact Report (EIR) – i.e., a comprehensive analysis of the significant impacts that the project could result in.

Projects may be exempt from the preparation of an Initial Study if a specific CEQA exemption applies or if the project is eligible for CEQA streamlining. 

In this case, County agencies considered the project scope and determined it is eligible for streamlining under Section 15183 of the CEQA Guidelines, because the project involves development consistent with the General Plan and an EIR was completed for the General Plan.  Specifically, all of the following criteria are met:

  • The project is consistent with the development density established by existing zoning and general plan policies for which an EIR (i.e., the General Plan EIR) was adopted.
  • There are no project-specific effects which are peculiar to the type of project or the project site.
  • There are no project-specific impacts which the General Plan EIR failed to analyze as significant effects.
  • There are no potentially significant off-site and/or cumulative impacts that the General Plan EIR failed to evaluate.
  • There is no substantial new information which results in more sever impacts than were anticipated under the General Plan EIR.

Unlike other statutory and categorical CEQA exemptions, a project being reviewed under Section 15183 requires a more detailed environmental analysis to document how each of the above criteria are satisfied.  At the applicant’s request, the Planning Division is providing the draft Section 15183 environmental review checklist for review and comment beginning December 5, 2025.  The comment period for this document ended on December 19, 2025.

Interested Parties Contact List

The County is maintaining a list of interested parties, which you can join by filling out the form at the bottom of this page. Adjacent property owners will receive a mailed postcard notice and interested parties will receive an email notice of any upcoming public hearings.

Ventura Ranch Farmworker Housing Project

SPECIAL NOTICE: You may subscribe to be notified of the Ventura Ranch Farmworker Housing Project by completing the form below.

Name

Translate Disclaimer

The vcrma.org website has been translated for your convenience using translation software powered by Google Translate. Reasonable efforts have been made to provide an accurate translation, however, no automated translation is perfect nor is it intended to replace human translators. Translations are provided as a service to users of the Ventura.org website, and are provided “as is.” No warranty of any kind, either expressed or implied, is made as to the accuracy, reliability, or correctness of any translations made from English into any other language. Some content (such as images, videos, Flash, etc.) may not be accurately translated due to the limitations of the translation software.

The official text is the English version of the website. Any discrepancies or differences created in the translation are not binding and have no legal effect for compliance or enforcement purposes. If any questions arise related to the accuracy of the information contained in the translated website, please refer to the English version of the website which is the official version.